551 Casas de Condomínio à venda em Tamboré, Santana De Parnaiba - SP - Pagina 5
-
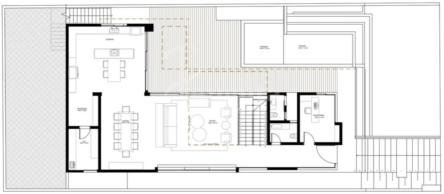
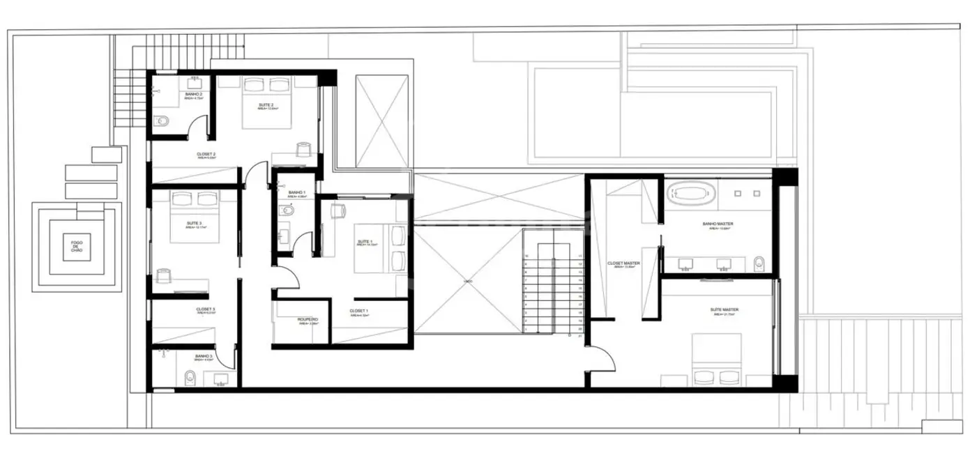
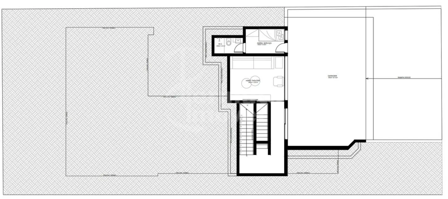
Tamboré, Santana De Parnaiba - SPR$6.000.000520 m24 Quartos6 Banheiros6 VagasProximidades do Imóvel:SupermercadoCarrefour Tamboré11 min de distânciaRestauranteBurger King4 min de distânciaBanco4 min de distânciaParada de transporte publico12 min de distânciaPosto de gasolina3 min de distância















































































































































































































































































