Sala Comercial para alugar por R$70.000
| Tipo de imóvel | Sala Comercial |
|---|---|
| Tipo de anúncio | para alugar |
| Aluguel | R$70.000 |
| Localização | Centro, Osasco - SP |
Descrição do imovel
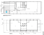
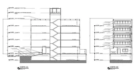
O prédio é composto pelos seguintes pavimentos:Subsolo: Garagem com capacidade para 6 vagas.Térreo: Recepção/Acesso, com possibilidade de manter o pilotis com mais 6 vagas ou ampliar para uma área de recepção ou triagem, totalizando 256,44 m².4 Pavimentos Tipo: Cada um com 195,49 m².Casa de Máquinas e Barrilete: A caixa d’água é dividida em 3 partes, com uma exclusiva para água de reuso para uso não potável.
A área total construída é de 1.208,86 m².Este imóvel foi desenvolvido para atender áreas como saúde, escritórios e instituições, sendo ideal para um único inquilino. Conta com acessibilidade universal, 2 banheiros por andar, elevador, sistema de captação e reuso de água pluvial. Suas janelas oferecem excelente iluminação natural, minimizando o calor e reduzindo a necessidade de uso de ar-condicionado.Além disso, o imóvel possui uma localização privilegiada, com fácil acesso às marginais, shoppings e à estação de trem.Cada pavimento tipo apresenta dois vãos livres de 70,00 m² de cada lado, permitindo um layout flexível. Foram previstos pontos de hidráulica e elétrica, com o hall de circulação vertical localizado ao centro, integrando os ambientes.
Valor do aluguel: R$ 70.000/mês (negociável, com possibilidade de carência para adaptações necessárias).Entre em contato para mais informações ou para agendar uma visita:
Telefone: (11) 3681-4362 / WhatsApp: (11) 93212-9094.Agora está completo! ???? Se precisar de algo mais, é só pedir.
Mais informações em www.imobiliariasupremaosasco.com.br
Localização
Centro, Osasco - SP












